Parempi tapa täyttää palokatkomääräykset

Helsingin Sanomat uutisoi hiljattain järvenpääläisestä taloyhtiöstä, jossa rakennusvirheiden tutkinnan yhteydessä myös palokatkot olivat paljastuneet puutteellisiksi. Jutun mukaan elementtikylpyhuoneet nousisivat esiin erityisesti hankkeissa, joissa palokatkomääräykset eivät täyty.
Flow Modulesilla palokatkomääräykset otetaan hyvin vakavasti. Vakioidut elementtikylpyhuoneemme ovat markkinoiden ainoita, jossa palokatkot ovat aina mukana joko valmiiksi pohjalaattaan valettuna tai elementin mukana toimitettuna. Vakiokylpyhuoneidemme toimitukseen sisältyy lisäksi palokatkosuunnitelma ja opastamme työmaita aina asennuksissa laadukkaan lopputuloksen varmistamiseksi.
Palokatkot pohjalaatassa valmiina
Innovatiivisen Base 3.0 -pohjalaattamme kantavissa tyypeissä, eli paikallavalu- ja PARMAflow-ratkaisuissa, palokatkot ovat valmiiksi valettuina elementtikylpyhuoneen pohjalaattaan.
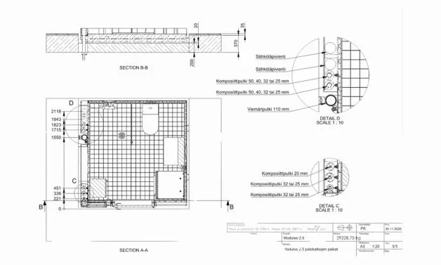
Pohjalaatat valetaan muotissa ylösalaisin, ja muottiin kasataan ennen valua mm. vesieristeiden ja raudoitusten lisäksi rakennushankkeen mukaan talotekniikan pystynousujen läpiviennit ja niiden palokatkot. Käytämme keskenään yhteensopivia palokatkotuotteita, ja mittatarkka tehdasasennus varmistaa, että mm. palokatkosuunnitelman mukaiset etäisyydet toteutuvat.
Palokatkotuotteille on aina määritetty polttokokeiden perusteella asennustapa sekä minimietäisyys lähellä sijaitseviin muihin palokatkoihin. Elementtikylpyhuoneissa tyypillisesti – niin myös meidän elementeissämme – pyritään minimoimaan LVI-nousujen käyttämää tilaa, jolloin hormialueelle tulee toisiaan lähellä olevia palokatkoja. Sen vuoksi elementtikylpyhuoneita käytettäessä on tärkeää varmistaa, että lähellä toisiaan sijaitsevien palokatkojen väliset minimietäisyydet täyttyvät, ja että käytetyt palokatkotuotteet ovat yhteensopivia kokonaisuuden kanssa.
Tehtaallamme jokainen muotti valokuvataan ja dokumentoidaan vielä ennen valua elementtikohtaisesti. Näin myös palokatkojen asennus on helppo tarvittaessa todentaa jälkikäteen kunkin asunnon kohdalla erikseen, vaikka vuosia kohteen valmistumisen jälkeen.


Muissa kuin kantavissa pohjalaattatyypeissä, kuten perinteisessä kololaatta-asennuksessa, toimitamme palokatkot elementtikylpyhuoneemme toimituksen mukana kylpyhuonekohtaisesti. Esimerkiksi työmaalla asennettava palomansetti on tällöin kiinnitetty elementtikylpyhuoneen ulkoseinään, josta se on ohjeiden mukaan helppo asentaa paikoilleen työmaalla.
Palokatkosuunnitelma ja asennusopastus työmaalla
Vakiokylpyhuoneidemme toimitus sisältää aina myös palokatkosuunnitelman. Suunnitelmassa kuvataan käytetyt palokatkotuotteet ja niiden rajoitteet, varmistetaan palokatkojen soveltuvuus sekä ohjeistetaan niiden asennus palokatkomääräykset täyttävällä tavalla työmaalla tehtävien asennusten osalta.



Emme myöskään jätä työmaata yksin. Kylpyhuonetoimituksiimme sisältyy aina asennusohjeet ja työmaalla tehtävä opastus. Opastuksessa käydään läpi myös palokatkojen asennus niiden tuotteiden osalta, joita ei olla asennettu valmiiksi jo tehtaalla.
Parempaa rakentamista innovaatioilla
Yksi kehitystyömme kulmakivistä on teknisten ratkaisuidemme miettiminen niin pitkälle, että ne osaltaan poistavat rakennushankkeista turhia epävarmuustekijöitä. Toimitamme elementtikylpyhuoneemme aina selkein urakkarajoin. Tekniset ratkaisumme, kuten hormitila, palokatkot ja viemärin äänieristyskotelo, maksimoivat yhteensopivuuden työmaalla ja toimivat osana laadukasta asuntorakentamista.
Jos vielä mietit, miten täyttää palokatkomääräykset turvallisesti käyttäen elementtikylpyhuoneita, olet lämpimästi tervetullut paikan päälle tutustumaan tuotantoomme!
Askarruttaako?
Ota yhteyttä ja tule tehdasvierailulle tutustumaan kylpyhuoneidemme valmistukseen.
