Siirry pääsisältöön
Etusivu » Kylpyhuonemoduuli » Vakiomoduulit

Vakiomoduulit

Vakiomoduulit ovat valmiiksi pitkälle mietittyjä. Suunnittelu saa lähtötiedot heti. Lisäksi talotekniikan ja runkoratkaisun yhteensopivuus on erinomainen.

Laadukas, nopea, ja kustannustehokas vakioratkaisu

Vakiomoduulit mahdollistavat tahtituotannon ja esivalmisteiden täysimittaisen hyödyntämisen. Niiden avulla saat enemmän irti teollisesta rakentamisesta. Pitkälle mietityt vakioratkaisut ovat myös hyvin yhteensopivia muiden komponenttien ja talotekniikan kanssa.

  • Valmiit suunnitelmat heti
  • Yllätykset työmaalla minimoitu
  • Nopea toimitus

Flow Modules 3.0 -vakiomoduulit

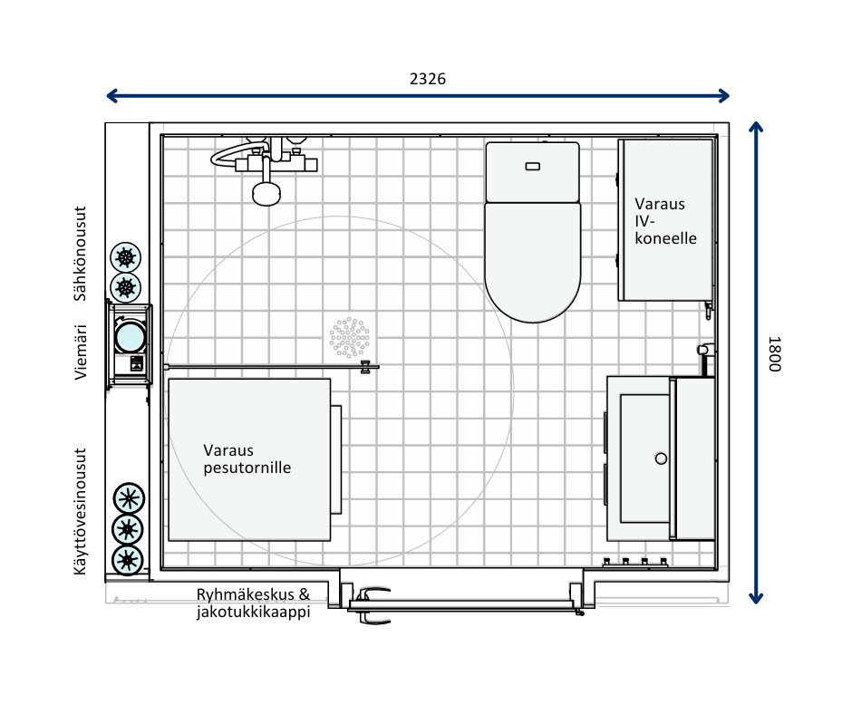
Vakiomoduuli XS

Pienin kylpyhuoneemme. Erityisesti opiskelija-asuntoihin ja muihin kohteisiin, joihin ei tarvitse mahtua pyörähdysympyrää.

Pinta-ala: 3 m2
Sisämitat: 2046 x 1398 mm
Ulkomitat: 2326 x 1600 mm

Vakiomoduuli S

Erityisesti kapeisiin yksiöihin sopiva pieni kylpyhuone, jonka ansiosta eteiseen saadaan mahtumaan pyörähdysympyrä.

Pinta-ala: 3,5 m2
Sisämitat: 2046 x 1598 mm
Ulkomitat: 2326 x 1800 mm

Vakiomoduuli M1

Tuoteperheen ydinmoduuli. Keskikokoinen kylpyhuone, jossa talotekniikka on sivuseinällä. Sopii monipuolisesti eri tyyppisiin asuntoihin, sillä siitä löytyy kaikki tarvittava sopusuhtaisena kokonaisuutena.

Pinta-ala: 4,5 m2
Sisämitat: 2046 x 2098 mm
Ulkomitat: 2326 x 2300 mm

Vakiomoduuli M2

Keskikokoisen M1-ydinmoduulin toinen versio, jossa talotekniikka on takaseinällä.

Pinta-ala: 4,5 m2
Sisämitat: 2209 x 1985 mm
Ulkomitat: 2313 x 2363 mm

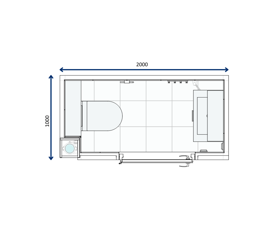
Vakio WC-elementti

Isompiin asuntoihin, joihin halutaan kylpyhuoneen lisäksi pieni erillis-WC.

Pinta-ala: 2 m2
Sisämitat: 1878 x 847 mm
Ulkomitat: 2000 x 1000 mm

L-koon moduulit

Saunalliset perheasuntojen kylpyhuoneet. Eri kokoja ja muotoja; kysy lisätietoja!

Esimerkki:
Pinta-ala: 6,5 m2
Sisämitat: 3396 x 2100 mm
Ulkomitat: 3650 x 2300 mm

Etkö löytänyt sopivaa?

Flow Modules 3.0 -kylpyhuonemoduulit ovat myös räätälöitävissä asiakas- tai projektikohtaisesti. Tutustu räätälöintimahdollisuuksiin ja ota yhteyttä, niin etsitään teille sopiva ratkaisu!

Kiinnostavatko vakiomoduulit?

Tule tehtaallemme tutustumaan vakiomoduuleihimme sekä niiden valmistukseen.

 

Timo Haapaviita

Myyntipäällikkö
Flow Modules Oy

+358 40 55 11 597
timo.haapaviita@flowmodules.com