Palokatkot
Flow Modules on markkinoiden ainoa kylpyhuonemoduuli, jossa on palokatkot aina mukana joko valmiiksi asennettuna tai moduulin mukana toimitettuna.

Markkinoiden ainoa kylpyhuonemoduuli, jossa palokatkot aina mukana
Asennettuna tai toimituksen mukana
Flow Modules -kylpyhuonemoduuleissa on palokatkot aina mukana; kantavissa pohjalaattatyypeissä eli paikallavalu- ja PARMAflow-ratkaisuissa ne on valmiiksi asennettuina, ja muissa, kuten kololaatta-asennuksessa, moduulin mukana toimitettuna.
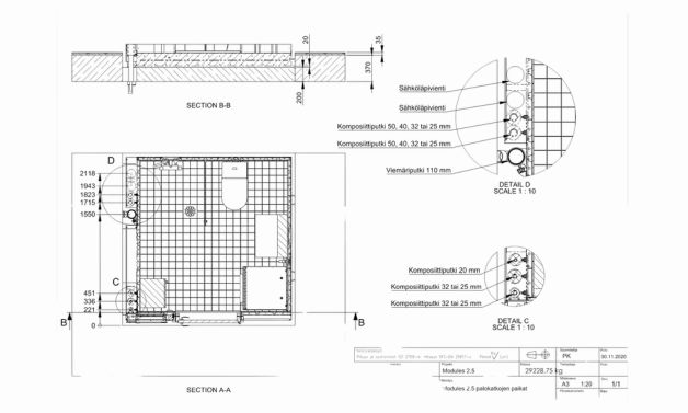
Palokatkot

Palokatkot valmiina
Flow Modules on markkinoiden ainoa kylpyhuonemoduuli, jossa on aina palokatkot mukana. Käytämme keskenään yhteensopivia, kohtuuhintaisia palokatkotuotteita joko valmiiksi asennettuna tai moduulin mukana toimitettuna.

Palokatkosuunnitelma
Vakiomoduulien toimitus sisältää myös palokatkosuunnitelman. Suunnitelma sisältää toimitettujen palokatkotuotteiden osalta rajoitteet sekä ohjeet, miten ne asennetaan määräykset täyttävällä tavalla.

Työmaan opastus
Opastamme työmaata asennuksen yhteydessä myös palokatkojen asennukseen niiden tuotteiden osalta, joita ei olla asennettu valmiiksi jo tehtaalla.
Täytä palokatkomääräykset
Palokatkoihin liittyviä ongelmia on liitetty mediassa myös kylpyhuonemoduuleihin. Kaikkien moduulitoimittajien osalta tämä ei suinkaan pidä paikkaansa – esimerkiksi meillä palokatkomääräykset otetaan hyvin vakavasti.
- Pohjalaatat valokuvataan palokatkoineen ja dokumentoidaan kylpyhuonekohtaisesti
- Opastamme työmaan myös palokatkojen asennukseen
